| Arhitektura 20. st. Franka Lloyda Wrighta | |
|---|---|
| |
| Godina uvrštenja: | 2019. (43. zasjedanje) |
| Vrsta: | Kulturno dobro |
| Mjerilo: | ii |
| Ugroženost: | - |
| Poveznica: | 1496 UNESCO |
Unity Temple ili Hram jedinstva je crkva Unitarijanskog univerzalizma koju je projektirao američki arhitekt Frank Lloyd Wright 1905. i koja je izgrađena 1908. godine u Oak Parku, Illinois. Crkva Unity bila je jedna od najvažnijih građevina u karijeri Franka Lloyda Wrighta. Kad je sagrađena bila je revolucionarna, a materijal koje je Wright ovdje upotrijebio na nov i ekspresivan način, bio je armirani beton[1]. Unity Temple je jedna od osam Wrightovih građevina koje je 2019. UNESCO upisao na popis mjesta svjetske baštine u Americi pod nazivom „Arhitektura 20. st. Franka Lloyda Wrighta”[2].

Povijest


Nakon što je stara drvena Unitarijanska crkva u Oak Parku izgorjela poslije udara munje 1905. god., F. L. Wright se ponudio da dizajnira novu za Universalističku kongregaciju. Naime, ne samo da je Wright živio u Oak Parku nego je dolazio iz obitelji unitarijanaca. Budžet je bio samo 45.000 $, pa je Wright predložio da se koristi jeftini beton, te je dizajnirao zidove istih dimenzija i koristio iste kalupe nekoliko puta. Naposljetku je zbog uštede dizajnirao i namještaj i vitraje. Rezultat je bila jedna od najinventivnijih građevina tog doba. Crkva je dovršena 1908., a službeno je posvećena 26. rujna 1909. god. Od 1971. god. proglašena je za nacionalni povijesni spomenik. Od 2015. do 2017. god. crkva je uspješno obnovljena izvana i iznutra, što je koštalo 23 milijuna $[3].
Odlike
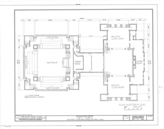
Crkva se sastoji od župnog dvora i auditorija, povezanih zajedničkim ulazom, kako bi se napravilo slovo H (ako gledamo tlocrt). Kompletan prekid s tradicionalnim projektom crkve bio je oblik bloka. Interijer je spektakularna izložba složenih prostornih veza i smjelog geometrijskog ornamenta[1]. Kako bi smanjio buku s jako prometne ulice u kojoj se nalazila crkva, Wright je uklonio prozore u razini ulice i umjesto njih stavio vitraje na krovu i svjetlarnike duž gornjih zidova. Kako auditorij ima sjedalice u prizemlju ispred oltara, ali i dvije galerije sa sjedalicama, nijedan vjernik nije udaljen više od 12 m od oltara. Wright je posudio neke elemente iz svog ranijeg dizajna, Zgrade Larkin, a dvodijelni dizajn je kasnije ponovio u Guggenheim muzeju u New Yorku.
Izvori
- ↑ 1,0 1,1 John Julius Norwich, Velike arhitekture svijeta, Marjan tisak, Split, 2005. str., 227. ISBN 953-214-266-5
- ↑ Two cultural sites added to UNESCO’s World Heritage List, službene stranice UNESCO-a, 7. srpnja 2019. (eng.) Pristupljeno 14. srpnja 2019.
- ↑ Blair Kamin, Restored Unity Temple, Loop CTA station highlight winners of architecture awards, chicagotribune.com, 26. listopada 2018. (eng.) Pristupljeno 15. srpnja 2019.
Vanjske poveznice
- http://unitytemple.org/ Službene stranice Crkve] (eng.)
- Unity Temple, panoramske fotografije visoke rezolucije (eng.)
- Great building online: Unity Temple (eng.)
